안녕하세요.
2025년 건축시공기술사 합격을 목표로 하고 있습니다. 문제에 대한 개요를 작성하고 남들이 그리지 않는 그림, 신기술 등 자료를 찾고 있습니다. 자료 찾고 공부 하면서 합격 할 수 있게 노력 할 것이며, 더불어 보시는 분들도 합격 하셨으면 좋겠습니다.

개요
1). 커튼월은 공장생산 부재로 구성되는 비내력 외벽으로 건물 골조에 fastenr를 사용하여 부착시킨 외부벽체이다.
2). 커튼월 공법의 종류는 재료별, 조립방식별, 외관형태별로 구분되며 시공시 형태와 방식에 적정한 품질관리가 필요하다.
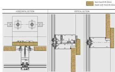
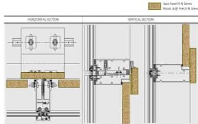
커튼월 층간 화재확산방지를 위한 경량무기발포 세라믹보드의 백패널 및 프레임커버 적용공법
*현대산업개발
1. 공법소개
: 내화성과 단열성이 뛰어난 경량 세라믹 패널을 사용한 커튼월 시공 방식입니다. 커튼월은 건물의 하중을 지지하지 않는 외부 칸막이 벽이다.

2. 경량무기발포 세라믹 구조
: 기존 커튼월 공법의 문제점은 건물에 화재가 발생하면 화염이 수직으로 퍼져 인명과 재산 피해가 발생된다. 이번 신기술은 이러한 문제점을 개선하고, 커튼월이 있는 고층, 대형 건물에서 화재가 층간 확산을 방지할 수 있다.

3. 세라믹보드 적용 커튼월 시스템
: 이 새로운 기술을 적용하면 내화성이 30분에 도달하여 현재 국내 내화성 기준을 15분 초과하며, 신기술로 개발된 세라믹 보드 사용시 재활용이 가능하다. 세라믹보드 시공시 폐기물 발생을 크게 줄일 수 있다. 건설 산업의 다양한 분야에서 기능성 소재로 사용할 수 있다.

내화성 커튼월 시스템 제안
: 내화구조 인증 및 관리 기준(국토교통성 고시 제2008-154호)은 내화충진구조(중간층 방화) 커튼월의 검출 및 성능 기준을 규정하고 있다. 제정은 되어 있지만, 벽체에 대한 기준이나 시험 방법은 정해진 것은 아니다. 다만, 2시간 이상의 내화시험을 거친 재료를 사용하도록 규정한 경우에는 시험 방법도 규정한다.

커튼월 내화시스템
바닥면에서 발생한 화재는 천장까지 타오르고, 설치되어 있는 물건이 불타게 된다. 커튼월과 바닥 슬래브 사이의 밀폐가 확실하지 않으면 화염과 독성 가스가 즉시 상층으로 퍼져 더 큰 피해를 입을 수 있습니다. ◦ 그 때문에, 저층층으로부터의 화재가 상층층에 중대한 피해를 미치지 않도록, 층간 방화 공사가 행해지고 있습니다.

커튼월 층간방화
구조체를 화재로부터 보호한다. 화재로 인한 스팬드럴 구간의 치명적손상을 방지한다. 층간을 통해 유독 가스나 화염들이 상부층으로 전달되는 것을 막을 수 있다. 건물 내 거주자들이 대피할 수 있는 시간을 확보 가능하다. 따라서 확실한 층간 방화 작업을 통해층간으로의 화염 전달을 방지하고 화염전달 속도를 지연시켜 화재로 인한 인명 및 재산 피해 등을 줄이는 것이 층간 방화 작업의 주 목적이다. 또한 에너지 효율을 높여줌으로써 에너 지 절약의 기능도 수행가능하다.

유기질, 무기 소재의 문제점
: 고층 건축물의 화재 등에 대한 취약성을 개선할 수 있는 초경량 및 내화성이 뛰어난 커튼월용 무기 발포재의 개발이 필수이다. 무기 발포 알루미늄 복합 패널 시스템의 구조 기술, 완성 시스템의 성능 평가기술, 시공기술을 동시에 개발할 필요가 있다.

커튼월 차상차 계획수립
: 유니트 커튼월은 유리를 포함한 커튼월의 조립이 완료된 상태에서 공장에서 시공현장까지 운반해야 하기 때문에 운반계획의 수립이 필요하다. 비용과 관련이 많기 때문에 입찰 시 이 부분이 고려되어야한다. 일반적으로 5톤 또는 8톤 트럭을 이용하는데 유니트의 품질을 유지하면서 최대한 많이 상차할 수 있는 계획이 필이다. 특히 유니트를 상차했을 때 트럭의 바닥으로 부터 상차한 유니트의 상단이 4m를 넘지 않도록 계획되어야 한다. 도로 통행에 있어서 화물차의 전체 높이가 4m를 넘지 않아야 도로교통법에 위반되지 않는다고 한다.

커튼월 자재운반용 파레트
: 유니트 커튼월은 자체 중량이 매우 크기 때문에 이동에 대한 고려가 필요하다. 이동 중 움직임으로 인하여 유니트와 유니트간 비벼짐으로 도장면이 손상이 갈 수 있고 유리의 파손도 일어날 수 있다. 또 빠레트와 묶는 과정에서 커튼월이 찌그러질 수 있다. 파레트의 설계도 고려하고 유니트의 크기 및 두께, 차량에 상차할 경우 가장 효율적인 크기 등을 고려해서 반영해야 한다.
1. Unit 사이 충격 완화를 위해 스티로폼 취부
2. 실링벨트로 벤딩 후 파레트와 결속
3. 커튼월의 충격흡수를 위해 충격흡수재 사용하여 Unit와 같이 적재
4. 퀘스트 브레이크 사용

커튼월 설치 전 수직측량
1. Bench Mark 설정시 기준 설정(건설사 설정)
2. 건설사에서 설정한 F.L +1000mm 기점먹선을 기준으로 하여 커튼월 트랜섬의 도면상 마감높이 측정
3. 1차 검사 후 각 층 한 개면 당 4개지점 이상 검사 후 성과표 작성

커튼월 설치 전 먹매김
1. 열주 중심선을 연결한 선을 건설사로 부터 수령, 건설사 확인 후 현장Mark
2. 열주선에서 Working Point 현장 마킹
3. 상기 두선을 이용하여 각 열선에서 work 이격거리 마크하여 연결한 연장선을 이용하여 Work Point 찾아 현장 Mark
4. 1차 검사 후 2개 지점 이상을 재검사 후 성과표작성

서울 롯데타워 다이아그리드 공법
1. 서울 롯데월트 타워의 입면도
: 롯데건설에서 준공한 잠실 롯데월드타워 첨탑부는 초대형 다이아그리드 구조물을 설치했다. 다이아그리드 구조가 적용된 건축물 중 세계 최고 높이다.
서울 롯데월트 타워 전에 최고 높이 건물은 중국 광저우에 있는 국제금융센터 IFC 이며, 높이는 438.6m이다.

2. 다이아그리드의 대각선
: 다이아그리드란 대각선(Diagonal)과 격자(Grid)의 합성어로 대각 가새를 반복적으로 사용한 형태의 구조를 말한다. 다이아그리드의 뼈대는 기둥과 가새의 역할을 동시에 수행해 건물이 받는 하중을 효과적으로 저항해낸다. 롯데월드타워의 첨탑부는 다이아그리드를 통해 건물 전체를 받치는 중앙의 코어(기둥) 1개만 있을 뿐 별도의 내부 기둥이나 지지대를 세울 필요가 없어 탁 트인 전망대 등 내부에 넓은 공간을 확보할 수 있다.

3. 강풍 발생 시 다이아그리드 공법 작용요소
: 다이아그리드의 최대 장점은 태풍과 지진과 같은 횡적 저항을 높여주는 것이다. 롯데건설 기술연구원 팀은 “다이아그리드는 바람이 부딪칠 때 마름모꼴의 구조가 인장력(당기는 힘)과 압축력(누르는 힘)으로 번갈아 가며 저항해서 태풍과 지진 등에 견뎌내는 능력이 높아진다”고 말했다. 롯데월드타워는 첨탑부의 다이아그리드와 아웃리거, 벨트트러스 등 첨단 구조물이 횡적 저항을 높여줘 순간 최대풍속 80m/s와 진도 9의 지진에도 견딜 수 있다.

4. 다이아그리드 적용시 외관
: 건물 외벽인 ‘커튼월’에 다이아몬드 무늬가 생기면서 아름다운 외관을 갖추는 효과도 있다. 다이아그리드는 입체구조를 형성하기 때문에 비틀어지고 기울어지는 비정형 형태의 건물로도 설계가 가능하다. 실제 다이아그리드는 초고층 및 독창적 디자인의 건축물에 많이 적용되고 있고 롯데월드타워는 건물의 미적(美的) 효과를 높이기 위해 위로 갈수록 좁아지는 우아한 곡선으로 시공 되었다.
5. 서울 롯데월드타워의 높이
롯데월드타워 첨탑부에 설치되는 다이아그리드는 프라이빗 오피스 107층(약 435m)부터 전망대를 거쳐 월드타워 최고 높이의 지점(555m)까지 들어서며 높이만 무려 120m에 달하는 초대형 규모의 구조물이다. 롯데건설은 최근 몇 년간 초고층 건립 기술과 관련한 연구 및 국책연구과제를 병행 수행해왔고, 다이아그리드의 안전한 시공을 위해 (사)한국강구조학회와 함께 공동연구를 진행해 고도의 시공기술을 확보했다고 한다.
'건축시공기술사' 카테고리의 다른 글
| 건축시공기술사 슈미트해머에 사용 할 수 있는 신기술공법과 차별화된 그림 (0) | 2025.01.28 |
|---|